


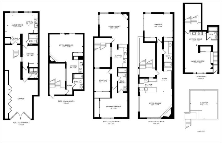
1217-1219 Kearny Street San Francisco, CA 94133
426100985
1,200 SQFT
Multifamily
1910
City Lights, Golden Gate Bridge, Bay Bridge
San Francisco
San Francisco County
Listed By
San Francisco Association Of Realtors
Last checked Apr 2 2026 at 2:21 PM GMT+0000
- Full Bathrooms: 4
- Laundry: Common Area
- Laundry: Coin Operated
- Washer/Dryer Leased
- Shape Regular
- Foundation: Slab
- Electric
- Garage
- Total: 1
- Leased
- 3
- 3,240 sqft
Listing Price History
Estimated Monthly Mortgage Payment
*Based on Fixed Interest Rate withe a 30 year term, principal and interest only












Description